Задайте вопрос👉

Агентства

(22)
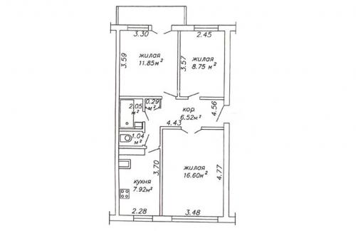
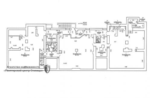
Фото работ
Показать сначала:
Диапазон цены:
0 р. - 200 р.
Показать
Все

Категории акций

Загрузка...
0
0
0%
29 дней
Загрузка...
0
0
0%
29 дней
Loading…
Loading the web debug toolbar…
Attempt #